販売中物件PURCHASE
- 中古一戸建
- 小金井市貫井北町3丁目土地
近隣商業地域300%!1階店舗+2階以上住居がおすすめ♪想定表面利回り6.23%参考プランもございます!
Information
- 価格
- 4000万円
- 間取り
- 土地
- 専有面積
- 69.69 ㎡
- 間取り内訳
- 交通
- 中央線「武蔵小金井」駅 徒歩20分
- 所在地
- 東京都小金井市貫井北町3丁目6−31
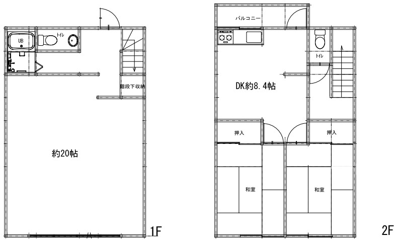
Plan
Gallery
Equipment
建築条件なし
整形地
Detail
- 建物構造
- その他
- 階建
- 2階建
- 土地権利
- 所有権
- 土地面積
- 69.69 ㎡
- 用途地域
- 近隣商業地域
- 建ぺい率 / 容積率
- 80 / 300
- 都市計画
- 市街化区域
- 地目
- 宅地
- 地勢
- 平坦
- 私道負担
- なし
- 接道
- 東側幅員20mに約6.29m接道、西側幅員4mに接道
- 現況
- 空室
- 入居可能時期
- 相談
- 備考
- 近隣商業地域300%の土地が出ました!視認性良好♪投資用アパートの建設がおすすめです!
古屋あり(建物免責)、建物解体必須、現況渡し
- 取引態様
- 専任
- 情報更新日:2025/8/5
- 次回更新予定日: 2025/08/19
Map
Contact
小金井市貫井北町3丁目土地 に関するお問い合わせ





